The 27s | San Diego, California
2025
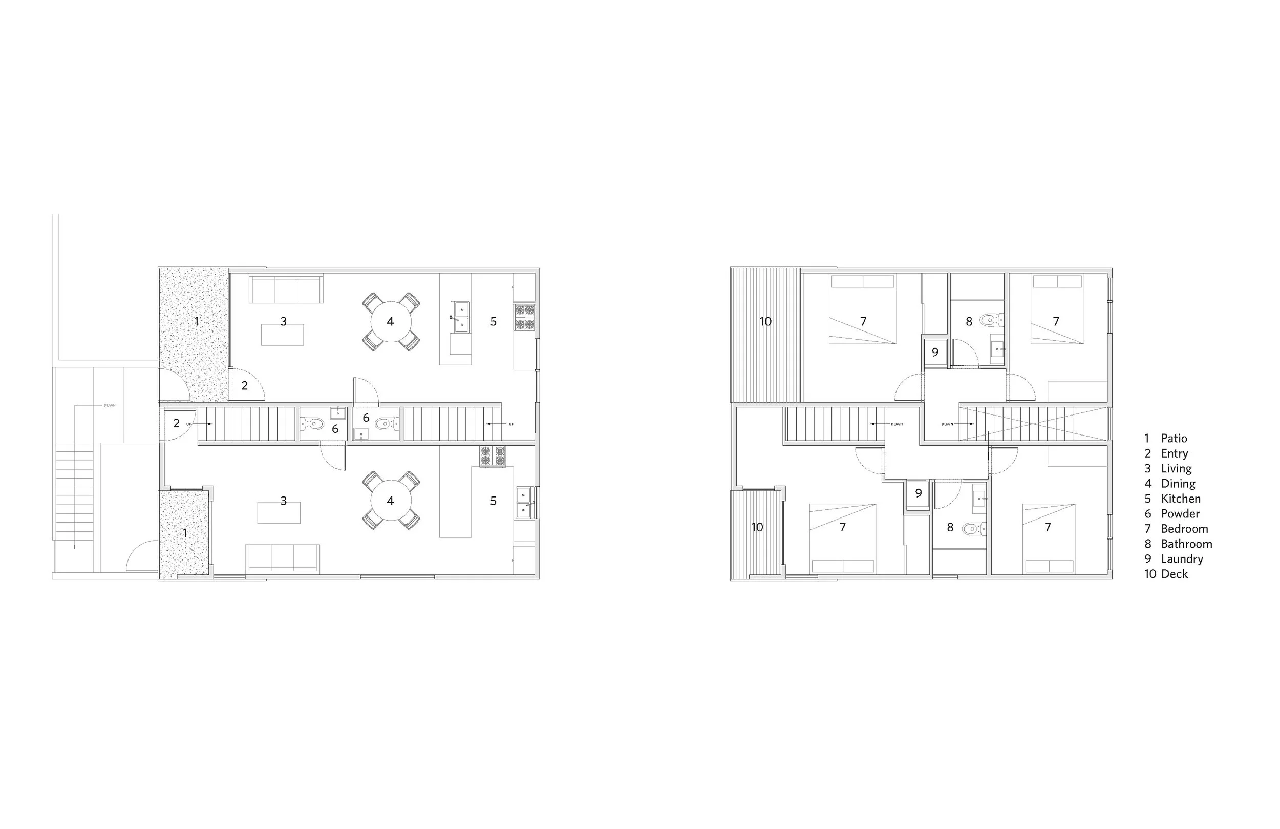
Located in the vibrant, walkable neighborhood of Golden Hill near downtown San Diego, The 27s provides much needed in-fill housing to replace a dilapidated garage and driveway. Functionally townhouses, the side-by-side units are two stories with expansive glass doors facing views of the city skyline, with distant ocean views over Coronado Island. This is Taylor Bode’s first design + build + develop project.
Photographs by Landform Photography (Jeremy Artates)























